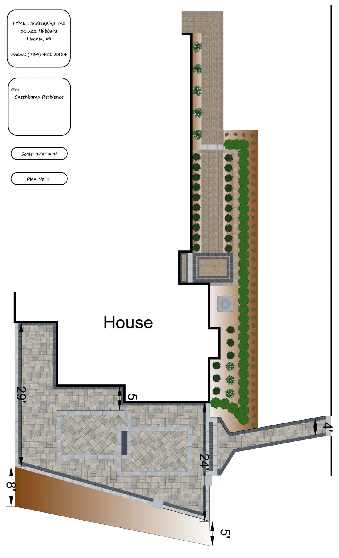
2D Landscape Design Plans

These are scaled top-down layouts showing dimensions, plant placement, hardscape zones, and traffic flow. Perfect for basic projects or as a first draft toward a more detailed rendering.